ID CP2856011

Aviatiei- Pipera- Nusco City Faza 2

ID CP2856011

199,000 € + 21% TVA

Apartament cu 2 camere de vânzare
Aviatiei, Bucuresti
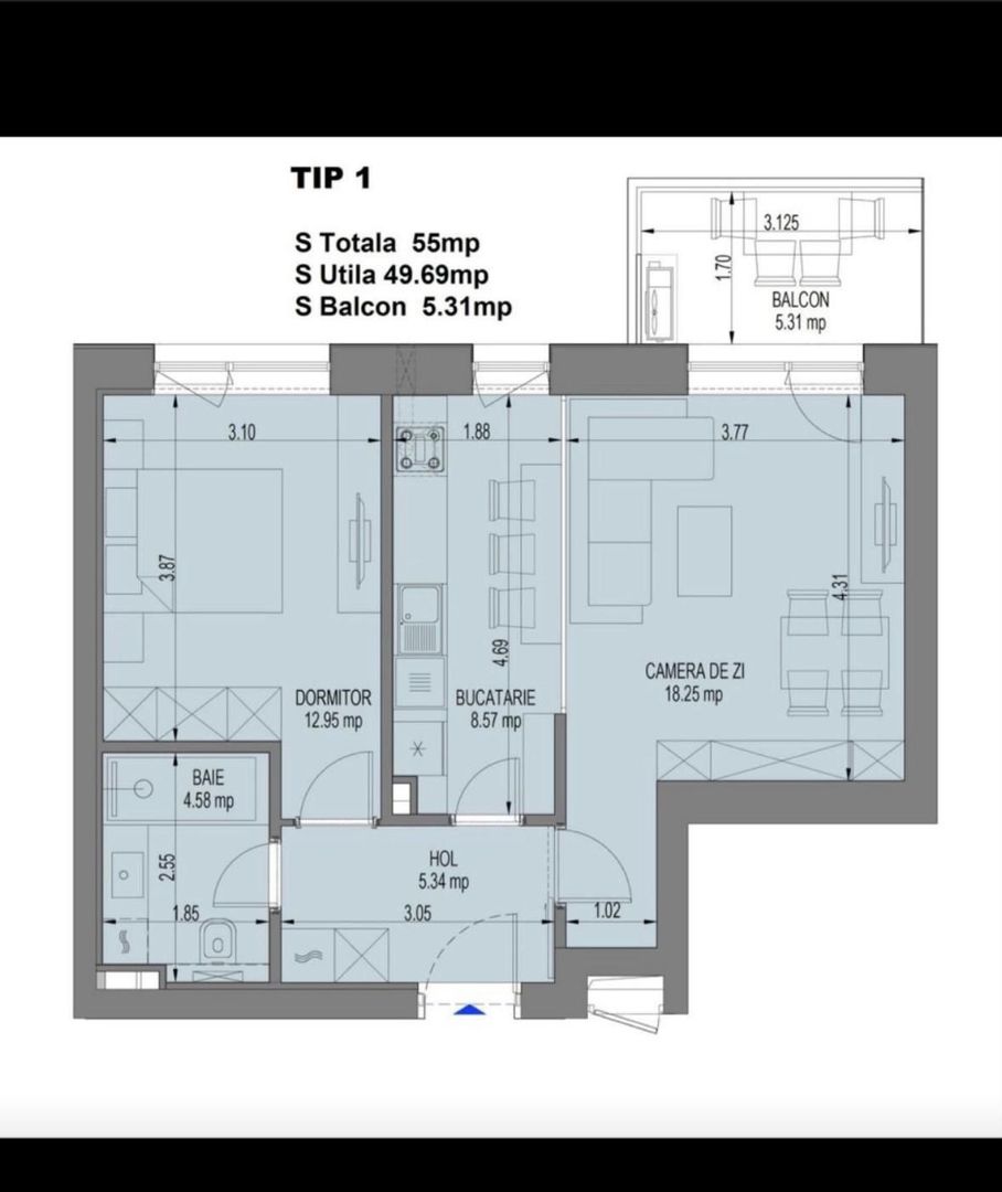
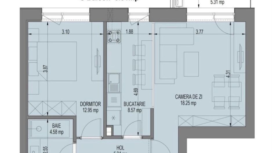
55 mp
2025

Top Home Advisors/Imob va propune spre vanzare un apartament in complexul rezidential Nusco City Faza a 2-a.

Complex rezidential este situat în nordul Bucurestiului, în inima zonei de business a orasului. În imediata apropiere a cartierelor Aviatiei si Floreasca, complexul se afla între statiile de metrou Pipera si Aurel Vlaicu, la doar câteva minute de Promenada Mall si de cele mai mari centre de birouri din zona. Proiectul dispune de doua parcuri private de 15.000 mp, fatade generoase din sticla, lobby-uri elegante cu receptii si finisaje premium.

Acest apartament este situat în Blocul 1B, la etajul 9. Este decomandat, cu o suprafata totala de 55 mp care include o terasa de 5.31 mp.

Data de finalizare este programata pentru ianuarie 2026. Apartamentul este disponibil pentru achizitionare prin cesiune si include si un loc de parcare!

La pretul afisat se adauga TVA-ul.

Citește mai mult

  • Tip apartament
    Apartament
  • Compartimentare
    Decomandat
  • Număr camere
    2
  • Dormitoare
    1
  • Număr bucătării
    1
  • Număr băi
    1
  • Etaj
    9
  • Suprafață utilă
    55 mp
  • Suprafață construită
    60 mp
  • Disponibilitate
    Imediat
  • Confort
    1
  • Stare interior
    Finisat modern
  • Anul finisării
    2025
  • Număr balcoane
    1
  • Număr locuri parcare
    1
  • Imobil
    Bloc de apart.
  • Stadiu construcție
    Finalizată
  • An construcție
    2025
  • Construcție nouă
    Da
  • Tip construcție
    Beton
  • Număr etaje clădire
    11

Facilități

Apă
Apometre
Bucătărie închisă
Cabină de duș
Canalizare
CATV
Centrală proprie
Contor electric
Contor gaz
Curent
Ferestre PVC
Garaj
Garaj subteran
Gaz
Geamuri termopan
Geamuri tripan
Gresie
Iluminat stradal
Încălzire prin pardoseală
Internet
Izolație exterioară
Mijloace de transport în comun
Nemobilat
Parcare acoperită
Parchet
Pază
Senzor de fum
Străzi asfaltate
Supraveghere video
Telefon
Ușă intrare metal
Vedere panoramică
Videointerfon
Vopsea lavabilă
Cristian Ursu - Top Home Advisors
Cristian Ursu
Manager/Broker imobiliar

0765487485 / / 0311081274


Solicită chiar acum o vizionare
Telefon
Sună acum Solicită vizionare
Necesare:

Site-ul nu poate funcționa corect fără aceste cookie-uri. Vezi cookie-urile

Statistică:

Strângem statistici anonime despre voi, vizitatorii unici, pentru a vă îmbunătăți experiența dumneavoastră. Vezi cookie-urile

Marketing:

Pentru a ne promova mai eficient serviciile noastre, folosim cookies pentru a vă identifica și a vă oferi proprietăți și servicii personalizate. Vezi cookie-urile

Acest site folosește cookies, află detalii. Alege ce tipuri de cookies dorești să permitem: